Jozef Israëlsstraat 41

Jozef Israëlsstraat 41

SPRANG-CAPELLE

verkocht

Ook jouw woning succesvol verkopen? Neem dan contactmet ons op

Gratis waardebepaling

Omschrijving

INSTAPKLARE GERENOVEERDE WONING MET GARAGE OF SALON

• Wil je een instapklare 2-onder-1-kap waar je zó in kunt trekken zonder eerst te hoeven klussen?
• Zoek je een moderne gezinswoning met drie slaapkamers en een ruime, lichte woonkamer met openslaande tuindeuren?
• Hou je van een luxe woonkeuken met eiland waar je kunt koken, borrelen én huiswerk aan dezelfde tafel gebeurt?
• Droom je van een eigen vrijstaande garage of bijgebouw dat je kunt gebruiken als salon, praktijkruimte of extra woonplek voor een familielid?
• Vind je een energiezuinige woning belangrijk, met al veel isolatie en HR++-glas, zodat je klaar bent voor de toekomst?
• Lijkt het je fijn om in een rustige, kindvriendelijke buurt te wonen met speeltuintjes en ruimte om buiten te spelen?
• Ben je op zoek naar een huis met een moderne badkamer met dubbele douche, toilet en wastafel, waar je ’s ochtends niet hoeft file te staan?
• Sta je te springen om een woning waar je rondom huis fijn kunt parkeren, ook als er visite komt?
• Zie jij jezelf al zitten op de bank in een strak afgewerkte woonkamer met visgraatvloer en grote ramen?
• Klinkt het goed dat alle ramen al zijn voorbereid voor elektrische rolluiken, zodat je later eenvoudig extra comfort en privacy toevoegt?

Heb je meer dan 1 keer JA IK WIL gezegd op deze vragen, dan is dit wellicht je nieuwe droomhuis.

• Ruime 2-onder-1-kapwoning
Een heerlijk gezinshuis met de ruimte van een 2-onder-1-kap: meer privacy, meer licht en vaak nét wat meer wooncomfort dan een tussenwoning.

• Compleet gerenoveerd in 2023
In 2023 is de woning grondig aangepakt: je profiteert van een modern afwerkingsniveau zonder verbouwstress.

• Aangebouwde woonkamer met openslaande tuindeuren
De aanbouw zorgt voor extra leefruimte en met de tuindeuren loop je zo je tuin in – perfect voor spelende kinderen of een zomerse barbecue.

• Moderne keuken met kookeiland
De nieuwe keuken met eiland is het hart van het huis: hier kun je uitgebreid koken, borrelen met vrienden en gezellig samen eten.

• Stijlvolle visgraatvloer
De visgraatvloer geeft de begane grond een rustige, luxe uitstraling en is bovendien praktisch in het dagelijkse gezinsleven.

• Nieuwe badkamer met dubbele douche, toilet en wastafel
Geen gedoe meer met tijdschema’s in de ochtend; met twee douches en een slimme indeling kan iedereen vlot de dag starten.

• 3 volwaardige slaapkamers
Ideaal voor een (groeiend) gezin, thuiswerkplek of logeerkamer; je kunt nog alle kanten op met de indeling. De 3de slaapkamer op zolder heeft nog wel een finishing touch nodig

• Energielabel C met extra isolatie
Officieel label C, maar inmiddels verbeterd met dakisolatie, vervangen ramen met HR++-glas en een volledig geïsoleerde aanbouw – fijn voor je comfort én je energierekening.

• Vrijstaande geïsoleerde garage/bijgebouw
De garage is geïsoleerd, voorzien van voorbereidende leidingen en ingedeeld om te kunnen gebruiken als salon, praktijkruimte of mogelijke woongelegenheid voor een familielid. Dat biedt kansen voor meerdere generaties of werken aan huis.

• Voorbereid op elektrische rolluiken
Alle ramen zijn voorbereid op elektrische rolluiken, zodat je later met relatief weinig moeite extra comfort, verduistering en veiligheid toevoegt.

• Ruime parkeergelegenheid rondom de woning
Parkeren voor de deur, op de oprit of in de buurt: ideaal als je meerdere auto’s hebt of graag bezoek ontvangt.

• Rustige, kindvriendelijke buurt
Hier woon je in een omgeving waar kinderen veilig kunnen spelen en jij na een drukke dag heerlijk tot rust komt.

Foto’s geven een indruk, maar pas als je binnen bent voel je of dit huis jou past—en dat gevoel vang je niet op een scherm. Daarnaast is deze woning, ondanks voorgaande poging, met geen pen te beschrijven :-). Wacht niet langer en maak een afspraak! Neem contact op met Ad Krijnen, de ADnormale makelaar bij REMAX en de Langstraat. Ad is 365 dagen per jaar bereikbaar en flexibel met bezichtigingen, ook 's avonds of in het weekend. Dus neem vandaag nog contact op en zet je eerste stap naar jouw nieuwe thuis!
Lees meer

Kenmerken

Overdracht

Status
verkocht
Aanvaarding
in overleg

Bouw

Soort woning
woonhuis
Soort woonhuis
eengezinswoning
Type woonhuis
twee onder een kapwoning
Aantal woonlagen
3
Bouwjaar
1969
Onderhoud binnen
goed_tot_uitstekend
Onderhoud buiten
goed_tot_uitstekend

Energie

Energielabel
C

Oppervlakten en inhoud

Woonoppervlakte
96 m²
Perceeloppervlakte
216 m²
Inhoud
374 m³
Inpandige ruimte oppervlakte
10 m²
Bergruimte oppervlakte
27 m²
Buitenruimte oppervlakte
8 m²

Indeling

Aantal kamers
4

Buitenruimte

Tuin
achtertuin met een oppervlakte van 104 m² en is gelegen op het oosten

Garage / Schuur / Berging

Garage
vrijstaande stenen garage
Parkeergelegenheid
op eigen terrein
Schuur/berging
vrijstaand steen

Foto's

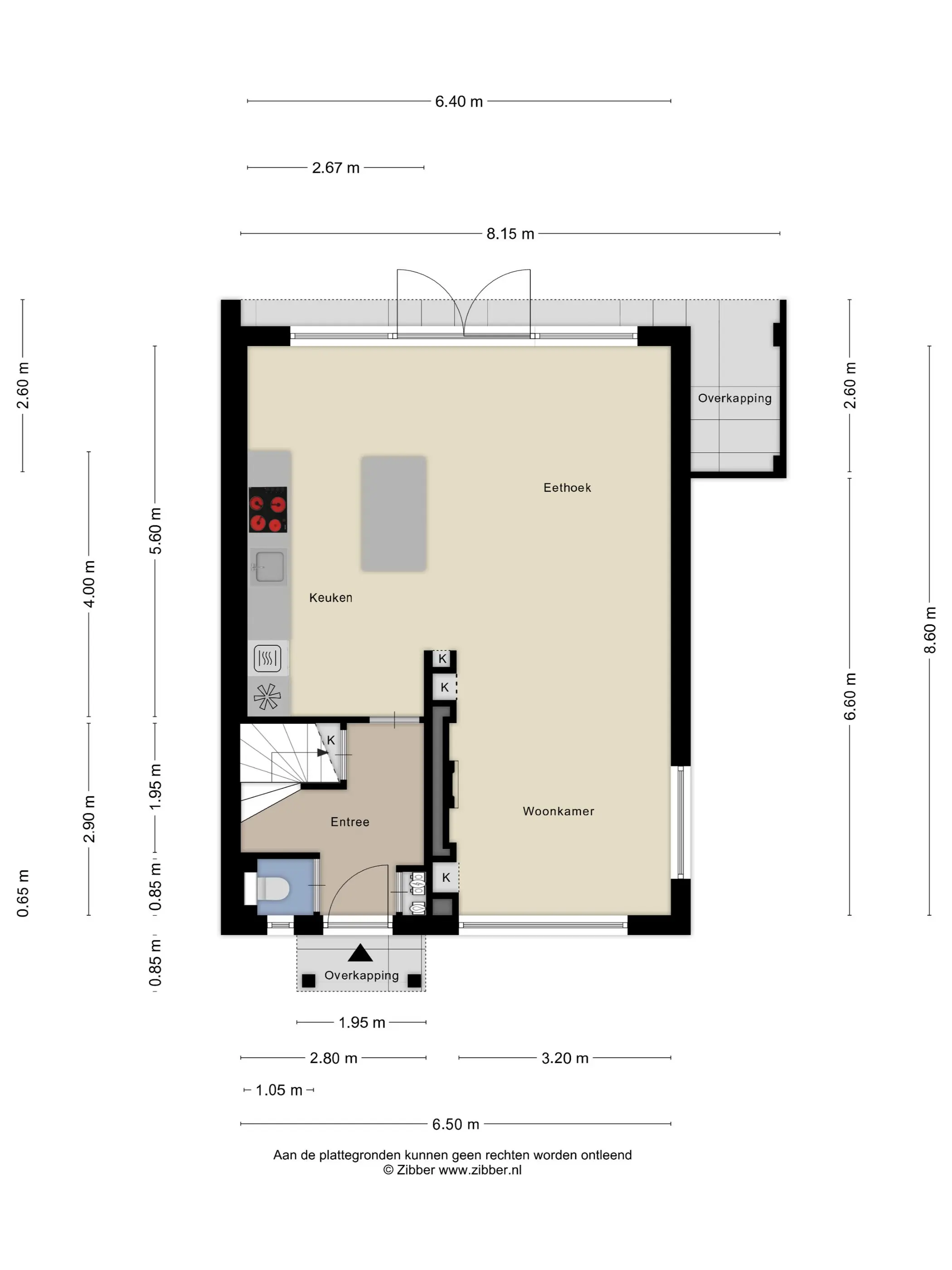
Plattegronden

Locatie

Downloads

Vraag een bezichtiging aan of neem contact met ons op